Maison neuve à
Bourneau (85200) Référence : MC2316607_2

Prix du projet : Maison avec Terrain

prix 147 600 €

  • 3 pièces
  • 2 chambres
  • Surface maison 68 m2

VENTE : maison de 3 pièces (68 m²) à Bourneau
MAISON 3 PIÈCES NEUVE
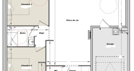
En vente à 41 km de la côte atlantique, laissez vous charmer par cette maison de 3 pièces de plain-pied de 68 m² et de 483 m² de terrain à Bourneau (85200). Elle dispose de deux chambres, d'une cuisine et d'une salle de bains.
Cette maison est neuve.
Il y a l'École Primaire Publique à l'Orée des Bois à moins de 10 minutes à pied. Il y a un accès à l'autoroute A83 à 10 km.
Son prix de vente est de 147 600 €.
Prenez contact avec notre agence (Marie CASTELOT : 02-51-46-19-69) pour tout renseignement sur cette maison ou sur les démarches à suivre. Faites de vos projets immobiliers une réalité avec Maisons Tradilignes La Roche-sur-Yon.

Mentions légales

Terrain proposé par un partenaire foncier selon disponibilités et autorisation de publicité au prix de 20 286 €. Hors droit d'enregistrement et frais de notaire. Maison proposée, avec un contrat de construction de maison individuelle, dans le cadre de la loi du 19/12/1990, au prix de 127 314 € (Hors branchements et raccordements, papiers peints, peintures, revêtement de sol dans les chambres, qui sont chiffrés dans les travaux qui restent à charge du client. Tarif modifiable sans préavis). Étiquette énergie : A. Différents modèles disponibles pour ce terrain. Assurances et garanties du constructeur comprises (RC professionnelle, décennale, dommage ouvrage).

Contactez l'agence de La Roche-sur-Yon

02 51 69 25 92

    * Champs obligatoires

    Vos informations sont traitées par HEXAOM et transmises à un conseiller commercial qui vous contactera afin de répondre à votre demande. Les plans et images présentés sur notre site sont la propriété d’HEXAOM et ne peuvent pas être reproduits sans son accord. Pour retrouver notre politique de protection des données personnelles et exercer vos droits conformément à la « loi informatique et liberté » cliquez-ici.