Maison neuve à
Basse-Goulaine (44115) Référence : FD2397775_3

Prix du projet : Maison avec Terrain

prix 490 000 €

  • 6 pièces
  • 5 chambres
  • Surface maison 114 m2

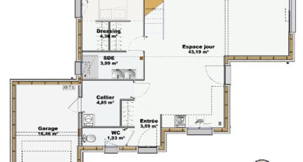
VENTE : maison F6 (114 m²) à Basse-Goulaine
QUARTIER RECHERCHÉ - MAISON 6 PIÈCES NEUVE
À vendre : à 30 km de la côte atlantique et à deux pas de Nantes, nous sommes heureux de vous proposer, nichée dans un quartier attractif de Basse-Goulaine (44115), cette maison de 6 pièces de 114 m². Elle dispose de cinq chambres, d'une cuisine et de deux salles de bains.
Le terrain de cette maison s'étend sur 610 m².
Il s'agit d'une maison de 2 niveaux. Elle est neuve.
Cette maison se situe dans un secteur convoité. L'École Primaire Privée Saint Brice-Sainte Marie, le Lycée Agricole Privé de Basse-Goulaine, l'École Élémentaire Publique le Grignon et le Collège de Goulaine sont implantés à moins de 10 minutes à pied, tout comme une crèche. Niveau transports, on trouve 11 gares à moins de 10 minutes en voiture. La nationale N249 est accessible à 1 km. Il y a deux tennis, une bibliothèque, deux boulangeries, des commerces, un supermarché, deux boucheries-charcuteries et une épicerie à quelques minutes à peine.
Elle est proposée à l'achat pour 490 000 €.
Prenez contact avec Franck DUJARDIN (02-40-33-10-00) pour toute question sur le bien, sur les démarches à suivre et sur les modalités de vente. Concrétisez vos projets immobiliers avec Maisons Tradilignes Saint-Sébastien-sur-Loire.

Mentions légales

Terrain proposé par un partenaire foncier selon disponibilités et autorisation de publicité au prix de 220 000 €. Hors droit d'enregistrement et frais de notaire. Terrain + Maison proposés au prix de 490 000 € (Hors branchements et raccordements, papiers peints, peintures, revêtement de sol dans les chambres. Tarif modifiable sans préavis). Etiquette énergie : A. Différents modèles disponibles pour ce terrain. Assurances et garanties du constructeur (RC professionnelle, décennale, dommage ouvrage, garantie de remboursement de l'acompte, livraison à prix et délai convenu) : https://www.tradilignes.fr/mentions-legales/.

Contactez l'agence de Saint-Sébastien-sur-Loire

02 40 33 10 00

    * Champs obligatoires

    Vos informations sont traitées par HEXAOM et transmises à un conseiller commercial qui vous contactera afin de répondre à votre demande. Les plans et images présentés sur notre site sont la propriété d’HEXAOM et ne peuvent pas être reproduits sans son accord. Pour retrouver notre politique de protection des données personnelles et exercer vos droits conformément à la « loi informatique et liberté » cliquez-ici.