Maison neuve à
Avrillé (85440) Référence : MC2336416_1

Prix du projet : Maison avec Terrain

prix 155 310 €

  • 3 pièces
  • 2 chambres
  • Surface maison 67 m2

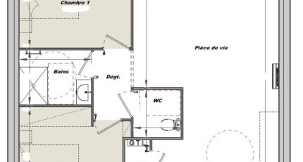
VENTE : maison T3 (67 m²) à Avrillé
PROCHE DE LA ROCHE-SUR-YON - MAISON 3 PIÈCES NEUVE
En vente : localisée à 9 km de la côte atlantique et à 23 km de La Roche-sur-Yon, nous vous proposons cette maison de 3 pièces de plain-pied de 67 m² et de 310 m² de terrain à Avrillé (85440).
Conçue de plain-pied, elle offre deux chambres, une cuisine et une salle de bains. La maison est neuve.
Il y a l'École Primaire Privée Saint Domnin et l'École Primaire Publique Jean de la Fontaine à moins de 10 minutes à pied. L'autoroute A87 est accessible à 18 km. On trouve un tennis, une boulangerie et deux épiceries à quelques minutes.
Elle est proposée à l'achat pour 155 310 €.
Contactez Marie CASTELOT (tél : 02-51-69-25-92) pour obtenir de plus amples informations sur la maison ou sur les démarches à suivre. Concrétisez vos projets immobiliers avec Maisons Tradilignes La Roche-sur-Yon.

Mentions légales

Terrain proposé par un partenaire foncier selon disponibilités et autorisation de publicité au prix de 39 000 €. Hors droit d'enregistrement et frais de notaire. Maison proposée, avec un contrat de construction de maison individuelle, dans le cadre de la loi du 19/12/1990, au prix de 116 310 € (Hors branchements et raccordements, papiers peints, peintures, revêtement de sol dans les chambres, qui sont chiffrés dans les travaux qui restent à charge du client. Tarif modifiable sans préavis). Étiquette énergie : A. Différents modèles disponibles pour ce terrain. Assurances et garanties du constructeur comprises (RC professionnelle, décennale, dommage ouvrage).

Contactez l'agence de La Roche-sur-Yon

02 51 69 25 92

    * Champs obligatoires

    Vos informations sont traitées par HEXAOM et transmises à un conseiller commercial qui vous contactera afin de répondre à votre demande. Les plans et images présentés sur notre site sont la propriété d’HEXAOM et ne peuvent pas être reproduits sans son accord. Pour retrouver notre politique de protection des données personnelles et exercer vos droits conformément à la « loi informatique et liberté » cliquez-ici.