Maison neuve à
Aizenay (85190) Référence : MC2316587_4

Prix du projet : Maison avec Terrain

prix 230 410 €

  • 4 pièces
  • 3 chambres
  • Surface maison 84 m2

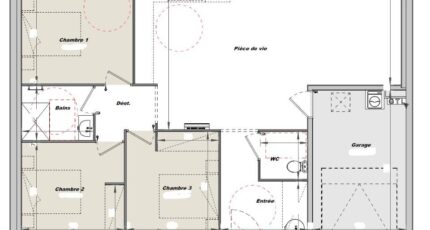
VENTE d'une maison T4 (84 m²) à Aizenay
MAISON 4 PIÈCES NEUVE - PROCHE DE LA ROCHE-SUR-YON
À vendre : à 30 km de la côte atlantique et à deux pas de La Roche-sur-Yon, nous sommes ravis de vous proposer cette maison de 4 pièces de plain-pied de 84 m² et de 596 m² de terrain à Aizenay (85190).
Son intérieur est composé de trois chambres, d'une cuisine et d'une salle de bains. Cette maison est neuve.
Cinq établissements scolaires se trouvent à moins de 10 minutes à pied, tout comme une structure d'accueil pour les enfants en bas âge. L'autoroute A87 est accessible à 13 km. Il y a un bassin de natation, un tennis, des commerces, des boulangeries, une poissonnerie, deux épiceries et une boucherie-charcuterie à proximité du logement.
Elle est à vendre pour la somme de 230 410 €.
N'hésitez pas à prendre contact avec notre agence (Marie CASTELOT : 02-51-46-19-69) pour obtenir de plus amples informations sur la maison. Maisons Tradilignes La Roche-sur-Yon vous accompagne dans toutes vos démarches et à toutes les étapes de l'achat.

Mentions légales

Terrain proposé par un partenaire foncier selon disponibilités et autorisation de publicité au prix de 89 400 €. Hors droit d'enregistrement et frais de notaire. Maison proposée, avec un contrat de construction de maison individuelle, dans le cadre de la loi du 19/12/1990, au prix de 141 010 € (Hors branchements et raccordements, papiers peints, peintures, revêtement de sol dans les chambres, qui sont chiffrés dans les travaux qui restent à charge du client. Tarif modifiable sans préavis). Étiquette énergie : A. Différents modèles disponibles pour ce terrain. Assurances et garanties du constructeur comprises (RC professionnelle, décennale, dommage ouvrage).

Contactez l'agence de La Roche-sur-Yon

02 51 69 25 92

    * Champs obligatoires

    Vos informations sont traitées par HEXAOM et transmises à un conseiller commercial qui vous contactera afin de répondre à votre demande. Les plans et images présentés sur notre site sont la propriété d’HEXAOM et ne peuvent pas être reproduits sans son accord. Pour retrouver notre politique de protection des données personnelles et exercer vos droits conformément à la « loi informatique et liberté » cliquez-ici.