Maison neuve à
Aizenay (85190) Référence : MC2316587_3

Prix du projet : Maison avec Terrain

prix 219 210 €

  • 4 pièces
  • 3 chambres
  • Surface maison 82 m2

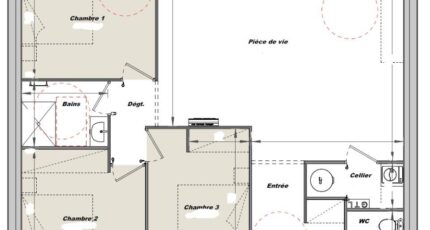
VENTE : maison de 4 pièces (82 m²) à Aizenay
PROCHE DE LA ROCHE-SUR-YON - MAISON 4 PIÈCES NEUVE
À vendre : située à 30 km de l'océan Atlantique et à deux pas de La Roche-sur-Yon, nous vous proposons cette maison de 4 pièces de plain-pied de 82 m² à Aizenay (85190).
Son intérieur comporte trois chambres, une cuisine et une salle de bains. La maison est neuve.
Le terrain de la propriété est de 596 m².
On trouve cinq établissements scolaires à moins de 10 minutes à pied, tout comme une crèche. Il y a un accès à l'autoroute A87 à 13 km. Il y a un bassin de natation, un tennis, des commerces, des boulangeries, une poissonnerie, un bureau de poste et une boucherie-charcuterie à proximité.
Son prix de vente est de 219 210 €.
Contactez Marie CASTELOT (tél : 02-51-46-19-69) pour obtenir de plus amples informations sur cette maison et sur les modalités de vente.

Mentions légales

Terrain proposé par un partenaire foncier selon disponibilités et autorisation de publicité au prix de 89 400 €. Hors droit d'enregistrement et frais de notaire. Maison proposée, avec un contrat de construction de maison individuelle, dans le cadre de la loi du 19/12/1990, au prix de 129 810 € (Hors branchements et raccordements, papiers peints, peintures, revêtement de sol dans les chambres, qui sont chiffrés dans les travaux qui restent à charge du client. Tarif modifiable sans préavis). Étiquette énergie : A. Différents modèles disponibles pour ce terrain. Assurances et garanties du constructeur comprises (RC professionnelle, décennale, dommage ouvrage).

Contactez l'agence de La Roche-sur-Yon

02 51 69 25 92

    * Champs obligatoires

    Vos informations sont traitées par HEXAOM et transmises à un conseiller commercial qui vous contactera afin de répondre à votre demande. Les plans et images présentés sur notre site sont la propriété d’HEXAOM et ne peuvent pas être reproduits sans son accord. Pour retrouver notre politique de protection des données personnelles et exercer vos droits conformément à la « loi informatique et liberté » cliquez-ici.