Maison neuve à
Aizenay (85190) Référence : MC2316587_1

Prix du projet : Maison avec Terrain

prix 205 710 €

  • 3 pièces
  • 2 chambres
  • Surface maison 66 m2

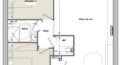
VENTE : maison T3 (66 m²) à Aizenay
MAISON 3 PIÈCES NEUVE - PROCHE DE LA ROCHE-SUR-YON
En vente à 30 km de l'océan Atlantique et à quelques kilomètres de La Roche-sur-Yon, ayez le coup de coeur pour à Aizenay (85190), cette maison de 3 pièces de plain-pied de 66 m² et de 596 m² de terrain.
Conçue de plain-pied, elle offre deux chambres, une cuisine et une salle de bains. Cette maison est neuve.
Cinq établissements scolaires sont implantés à moins de 10 minutes à pied, tout comme une crèche. Il y a un accès à l'autoroute A87 à 13 km. On trouve un bassin de natation, un tennis, des commerces, des boulangeries, deux épiceries, une poissonnerie et un bureau de poste dans les environs.
Elle est à vendre pour la somme de 205 710 €.
N'hésitez pas à prendre contact avec notre agence (Marie CASTELOT : 02-51-46-19-69) pour toute question sur la maison ou sur les modalités de vente. Faites de vos projets immobiliers une réalité avec Maisons Tradilignes La Roche-sur-Yon.

Mentions légales

Terrain proposé par un partenaire foncier selon disponibilités et autorisation de publicité au prix de 89 400 €. Hors droit d'enregistrement et frais de notaire. Maison proposée, avec un contrat de construction de maison individuelle, dans le cadre de la loi du 19/12/1990, au prix de 116 310 € (Hors branchements et raccordements, papiers peints, peintures, revêtement de sol dans les chambres, qui sont chiffrés dans les travaux qui restent à charge du client. Tarif modifiable sans préavis). Étiquette énergie : A. Différents modèles disponibles pour ce terrain. Assurances et garanties du constructeur comprises (RC professionnelle, décennale, dommage ouvrage).

Contactez l'agence de La Roche-sur-Yon

02 51 69 25 92

    * Champs obligatoires

    Vos informations sont traitées par HEXAOM et transmises à un conseiller commercial qui vous contactera afin de répondre à votre demande. Les plans et images présentés sur notre site sont la propriété d’HEXAOM et ne peuvent pas être reproduits sans son accord. Pour retrouver notre politique de protection des données personnelles et exercer vos droits conformément à la « loi informatique et liberté » cliquez-ici.