Maison neuve à
Aizenay (85190) Référence : MC2316474_1

Prix du projet : Maison avec Terrain

prix 165 360 €

  • 3 pièces
  • 2 chambres
  • Surface maison 66 m2

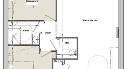
VENTE d'une maison T3 (66 m²) à Aizenay
MAISON 3 PIÈCES NEUVE - PROCHE DE LA ROCHE-SUR-YON
À 30 km de la côte atlantique et à 18 km de La Roche-sur-Yon, Maisons Tradilignes Saint-Sébastien-sur-Loire vous propose cette maison de 3 pièces de plain-pied de 66 m² à Aizenay (85190).
Son intérieur dispose de deux chambres, d'une cuisine et d'une salle de bains. La maison est neuve.
Le terrain du bien est de 327 m².
On trouve cinq établissements scolaires à moins de 10 minutes à pied, tout comme une crèche. L'autoroute A87 est accessible à 13 km. Il y a un bassin de natation, un tennis, des commerces, des boulangeries, une boucherie-charcuterie, une poissonnerie et un bureau de poste à quelques minutes à peine.
Son prix de vente est de 165 360 €.
Prenez contact avec Marie CASTELOT (tél : 02-40-33-10-00) pour obtenir de plus amples informations sur cette maison. Concrétisez vos projets immobiliers avec Maisons Tradilignes Saint-Sébastien-sur-Loire.

Mentions légales

Terrain proposé par un partenaire foncier selon disponibilités et autorisation de publicité au prix de 49 050 €. Hors droit d'enregistrement et frais de notaire. Maison proposée, avec un contrat de construction de maison individuelle, dans le cadre de la loi du 19/12/1990, au prix de 116 310 € (Hors branchements et raccordements, papiers peints, peintures, revêtement de sol dans les chambres, qui sont chiffrés dans les travaux qui restent à charge du client. Tarif modifiable sans préavis). Étiquette énergie : A. Différents modèles disponibles pour ce terrain. Assurances et garanties du constructeur comprises (RC professionnelle, décennale, dommage ouvrage).

Contactez l'agence de La Roche-sur-Yon

02 51 69 25 92

    * Champs obligatoires

    Vos informations sont traitées par HEXAOM et transmises à un conseiller commercial qui vous contactera afin de répondre à votre demande. Les plans et images présentés sur notre site sont la propriété d’HEXAOM et ne peuvent pas être reproduits sans son accord. Pour retrouver notre politique de protection des données personnelles et exercer vos droits conformément à la « loi informatique et liberté » cliquez-ici.